Kotly na drevo – ekonomické, spoľahlivé a tradičné vykurovanie pre domácnosti a podniky
Kotly na drevo – ekonomické, spoľahlivé a tradičné vykurovanie pre domácnosti a podniky
Vykurovanie drevom zostáva jedným z najstabilnejších a ekonomicky najvýhodnejších riešení pre domácnosti. V čase kolísavých cien energií a neistoty na trhu mnohí majitelia domov a väčších objektov hľadajú spoľahlivý systém, ktorý poskytuje vysoký výkon, predvídateľné náklady a dlhodobú prevádzku. Práve preto si Kotly na drevo naďalej udržiavajú dôležité miesto medzi preferovanými riešeniami vykurovania.
Tento typ vykurovania sa vyznačuje vysokou účinnosťou, ak je výkon správne zvolený a inštalácia je správne navrhnutá. Ďalšou výhodou je dostupnosť palivového dreva v mnohých regiónoch, čo uľahčuje plánovanie prevádzkových nákladov. Pri dobrej údržbe a správnom používaní môže kotol na drevo poskytovať stabilné vykurovanie mnoho rokov bez potreby zložitej automatizácie alebo drahej infraštruktúry.
.png)
Čo je kotol na drevo
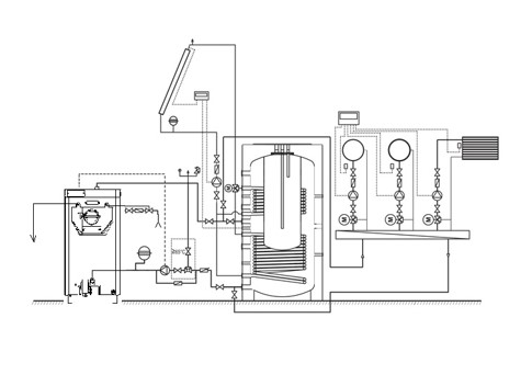
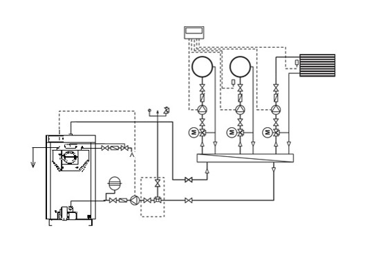
Kotol na drevo je vykurovacie zariadenie pre ústredný vykurovací systém, ktoré využíva tuhé palivo (drevo) na ohrev vody. Ohrievaná voda cirkuluje potrubným systémom do radiátorov alebo podlahového vykurovania a zabezpečuje rovnomernú teplotu v celej budove.
Na rozdiel od klasických kachlí a krbov je kotol určený na vykurovanie celého domu alebo objektu, nie len jednej miestnosti. Funguje ako hlavný zdroj tepla a môže byť kombinovaný s akumulačnou nádržou pre vyššiu účinnosť a menej časté prikladanie. V závislosti od modelu a konštrukcie môžu kotly ponúkať rôzne úrovne účinnosti a regulácie spaľovania. Moderné riešenia sú navrhnuté tak, aby optimalizovali spaľovanie dreva a znižovali tepelné straty, čo ich robí vhodnými pre novostavby aj modernizáciu existujúcich vykurovacích systémov.

Ako funguje kotol na drevo
Proces prevádzky kotlov na drevo je založený na spaľovaní tuhého paliva a prenose vzniknutého tepla do vodného plášťa (výmenníka tepla). Po zapálení dreva vzniká teplo, ktoré ohrieva vodu vo vnútri kotla. Obehové čerpadlo následne distribuuje horúcu vodu do vykurovacieho systému, po čom sa ochladená voda vracia späť do kotla na opätovné ohriatie.
Moderné modely možno rozdeliť do niekoľkých hlavných typov:
- Štandardné kotly s prirodzeným ťahom
- Kotly s ventilátorom pre nútený ťah
- Pyrolyzné (splyňovacie) kotly s vyššou účinnosťou
Pyrolyzné kotly zabezpečujú úplnejšie spaľovanie drevných plynov, čo vedie k nižšej spotrebe paliva a zníženým emisiám.


Vhodné použitie kotlov na drevo
Kotly na drevo sú vhodné pre objekty vybavené teplovodným vykurovacím systémom. Najčastejšie sa používajú v:
- Rodinných domoch
- Rekreačných chatách a vidieckych nehnuteľnostiach
- Menších bytových domoch
- Dielňach a skladoch
- Priemyselných halách
- Verejných budovách v oblastiach bez plynovej prípojky
Sú obzvlášť efektívne v regiónoch, kde je palivové drevo ľahko dostupné a cenovo výhodné.
Ako vybrať správny výkon
Výber správneho výkonu je jedným z najdôležitejších faktorov pri kúpe kotla. Nedostatočný výkon neposkytne dostatočný komfort, zatiaľ čo príliš vysoký výkon povedie k neefektívnej prevádzke a zbytočne vysokej spotrebe paliva.
Pri určovaní potrebného výkonu sa zohľadňujú tieto faktory:
- Celková podlahová plocha
- Výška stropov
- Tepelná izolácia
- Typ okien a dverí
- Klimatická zóna
Ako všeobecné pravidlo platí, že 1 kW výkonu dokáže vykúriť približne 10 m² pri dobrej izolácii a štandardnej výške stropu. Napríklad pre dom s plochou 150 m² sa zvyčajne odporúča kotol s výkonom medzi 15 a 20 kW.
Hlavné výhody kotlov na drevo
Kotly na drevo sú obľúbené vďaka viacerým kľúčovým výhodám. Poskytujú ekonomické vykurovanie a dlhú životnosť, najmä ak sú vyrobené z kvalitnej ocele.
Medzi ich hlavné výhody patria:
- Nízke náklady na palivo
- Vysoký vykurovací výkon
- Vhodné pre veľké priestory
- Relatívna nezávislosť od dodávateľov energií
- Nižšia počiatočná investícia v porovnaní s automatizovanými systémami, ako sú Kotly na pelety alebo kompletné Kotly na pelety (súpravy)
Nevýhody, ktoré treba zvážiť
Napriek svojim výhodám vyžadujú kotly na drevo viac zapojenia zo strany používateľa. Nie sú plne automatizované a vyžadujú pravidelnú údržbu.
Medzi hlavné nevýhody patria:
Rozdiel medzi kotlami na drevo a kotlami na pelety
Kotly na pelety sú modernou alternatívou k tradičným Kotly na drevo. Hlavný rozdiel spočíva v úrovni automatizácie a spôsobe podávania paliva.
Kotol na drevo sa prikladá manuálne a vyžaduje pravidelnú kontrolu. Počiatočná investícia je zvyčajne nižšia a palivo je často lacnejšie a dostupnejšie.
Kotol na pelety má automatické podávanie paliva, elektronické riadenie a programovateľné prevádzkové režimy. To prináša vyšší komfort a presnejšiu reguláciu teploty, no počiatočná investícia je vyššia.
Výber medzi týmito dvoma možnosťami závisí od rozpočtu, požadovanej úrovne automatizácie a dostupnosti paliva v konkrétnom regióne.
Rozdiel medzi kotlom na drevo a teplovodnými peletovými kachľami
Teplovodné peletové kachle je možné tiež pripojiť k vykurovaciemu systému, no zvyčajne majú nižší výkon a často kombinujú vykurovanie s dekoratívnou funkciou.
Kotol na drevo je navrhnutý predovšetkým na nepretržité a efektívne vykurovanie celej budovy, pričom ponúka vyšší výkon a lepšiu účinnosť pri dlhodobej prevádzke.
Na čo si dať pozor pred kúpou
Pred konečným rozhodnutím je dôležité venovať pozornosť technickým parametrom a kvalite spracovania.
Medzi hlavné parametre, ktoré treba zvážiť, patria:
- Menovitý výkon (kW)
- Účinnosť (tepelná účinnosť)
- Hrúbka ocele
- Typ spaľovacej komory
- Prítomnosť ventilátora
- Kompatibilita s akumulačnou nádržou
- Záručné podmienky a servisná podpora
Aké palivové drevo je najvhodnejšie
Účinnosť kotla na drevo závisí nielen od modelu, ale aj od kvality použitého paliva. Najlepšie výsledky sa dosahujú so suchými tvrdými druhmi dreva, ako sú:
- Dub
- Buk
- Hrab
Vlhkosť palivového dreva by mala byť nižšia ako 20%, pretože mokré drevo znižuje účinnosť a zvyšuje tvorbu sadzí.

Často kladené otázky (FAQ)
Ako často je potrebné prikladať do kotla na drevo?
Zvyčajne je potrebné prikladať každé 3 až 6 hodín, v závislosti od výkonu kotla, vonkajšej teploty a izolácie budovy.
Môže kotol na drevo fungovať bez elektriny?
Niektoré modely s prirodzenou cirkuláciou môžu fungovať bez elektriny, no väčšina systémov používa obehové čerpadlo a vyžaduje napájanie.
Je potrebný špeciálny komín?
Áno, správne dimenzovaný komín je nevyhnutný pre dobrý ťah a bezpečnú prevádzku systému.
Aká je životnosť kotla?
Pri správnej údržbe môže kotol fungovať 10 až 20 rokov.
Koľko palivového dreva je potrebné na jednu vykurovaciu sezónu?
V priemere dom s rozlohou 120 – 150 m² potrebuje približne 8 až 15 kubických metrov palivového dreva, v závislosti od kvality izolácie a klimatických podmienok.
Kotly na drevo zostávajú praktickým a ekonomickým riešením vykurovania, najmä v oblastiach bez plynovej infraštruktúry. Poskytujú vysoký výkon a relatívne nízke prevádzkové náklady, no vyžadujú väčšie zapojenie používateľa.
Správny výber závisí od veľkosti nehnuteľnosti, dostupného rozpočtu a požadovanej úrovne komfortu. Pri správnom výbere a profesionálnej inštalácii môže kotol na drevo poskytovať spoľahlivé vykurovanie po mnoho rokov.
Pozrite tiež:



